With the advent of the up coming launch of the Phase III-D satellite, I wanted to modify the 10 GHz transverter that Kerry Banke described to be able to operate on both 10,368 MHz and 10,451 MHz.
Kerry had already determined the pin out for the Synthesizer on 10,368 MHz, so it was only necessary to determine what they would be for 10,451 MHz. Since this frequency ended in an odd number, it would now be necessary to change the PLL frequency to 1 MHz. With a little arithmetic and the use of the Excel program that Kerry had developed, it was easy to determine the correct frequencies to be used for the VCO and Synthesizer input, and what the new pin out would be for the Synthesizer. Figures 1 and 2 shows a print out of the Excel program and a block diagram for each of the frequencies.
In the original article the PLL frequency was set at 2 MHz and used 1nF and 3nF capacitors in the reference suppression filter. With this modification the values of the suppression filter capacitors must be 4.7nF at C26 and 6.8nF at C24 & C25.
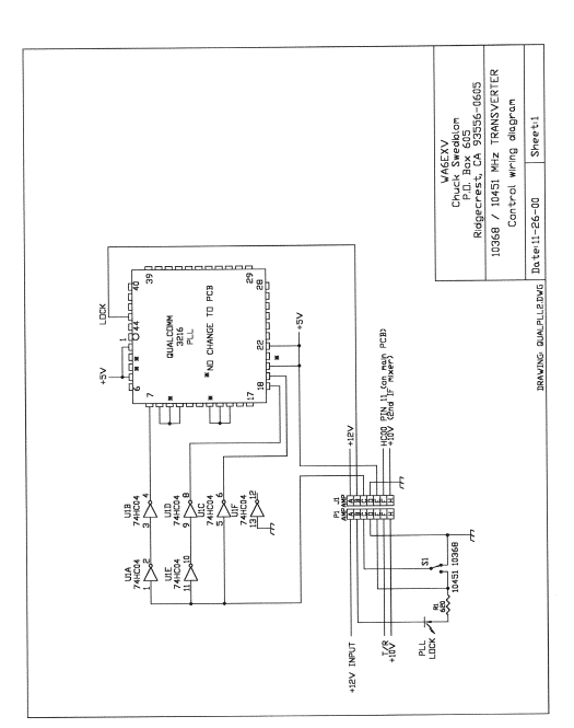
The control wiring diagram for the transverter that I modified, is shown in Figure 3. I mounted a small 7 pin connector on the edge of the main board to bring all of the wiring off the board. From a suggestion made by Ken Halford, WB6DTA, I made use of a 74HC04 and a SPDT switch to shift frequencies. The 74HC04 is epoxied to the top of the 3216 chip. The pin numbers are left to your discretion.
WARNING: If you intend to use this modification on a 'Texas Board', which uses the 3036 Synthesizer chip, then you need to thermally isolate the 74HC04 from the heat sink. On the 'Texas Board' that I used for my 24 GHz transverter, I mounted a 1" x 1" piece of 1/8" R/T Duroid to the fins of a heat sink that I had added to the existing 3036 heat sink. (On the desert it gets very hot during the August contest). And tell me of a better use for 1/8" Duroid!
If you have any questions, I can be contacted at chuckswed@juno.com.
Banke, Kerry, N6IZW, "A 10GHz Dual Conversion High Side LO Transverter from Surplus Qualcomm OmniTracks Units", Proceedings of Microwave Update '99, Pg. 127, ARRL, Newington CT, 1999.
I received my copy of the program from Ed Munn, W6OYJ. edmunn@compuserve.com
